Place Your Bid
Download the construction set here.
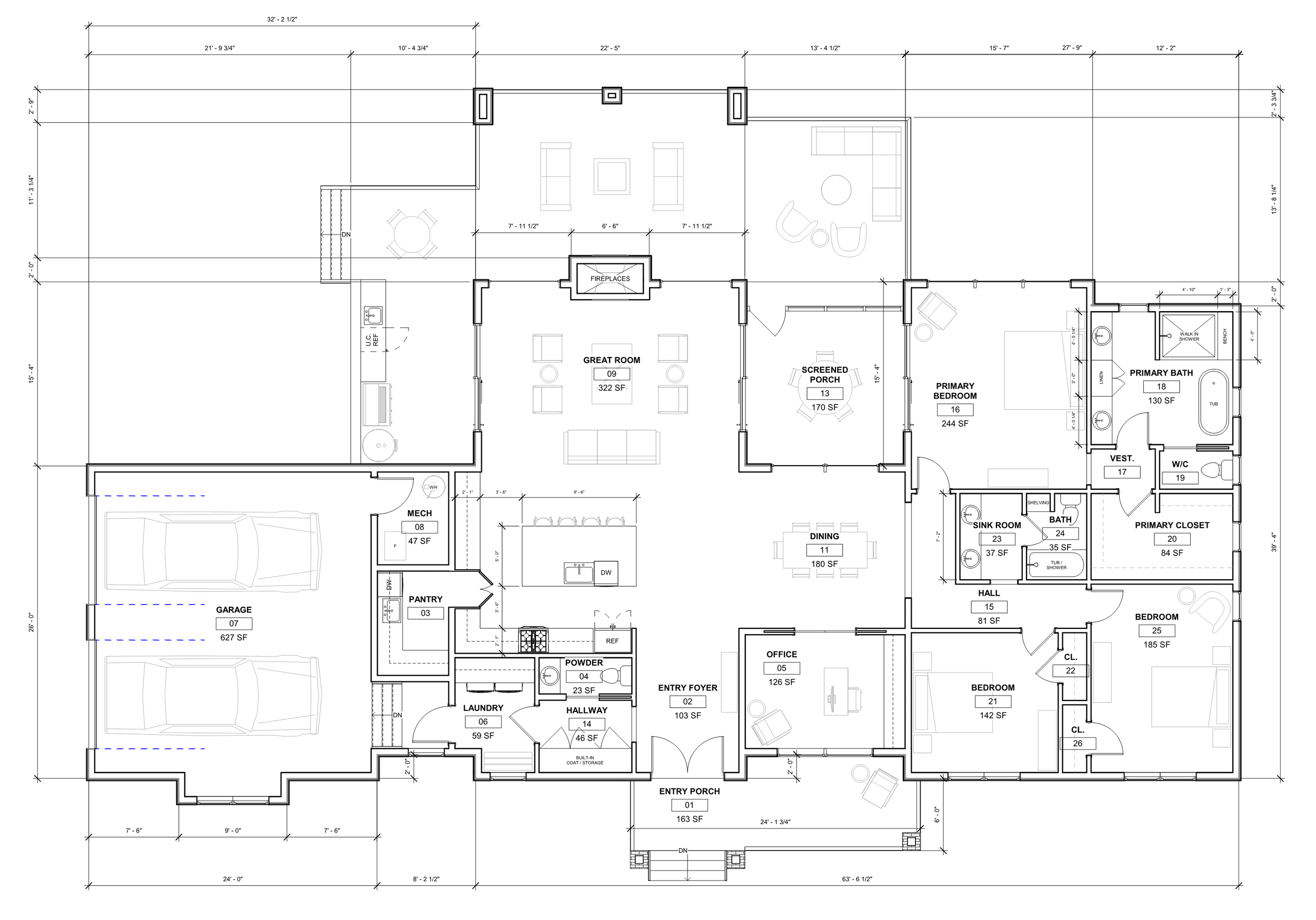
Project Description:
Addition: 1200 SF addition off the rear. New kitchen, 2 new bedrooms, 2 new bathrooms, an additional office, and a new deck. All finishes to be builder-grade.
Place Your Bid
Download the construction set here.
Project Description:
Addition: 1200 SF addition off the rear. New kitchen, 2 new bedrooms, 2 new bathrooms, an additional office, and a new deck. All finishes to be builder-grade.